Τίτλος : Παιδικό Δωμάτιο στην Κάτω Τούμπα
Λέξεις – Κλειδιά : Λειτουργικότητα, Άνεση, Οριοθέτηση, Διέλευση
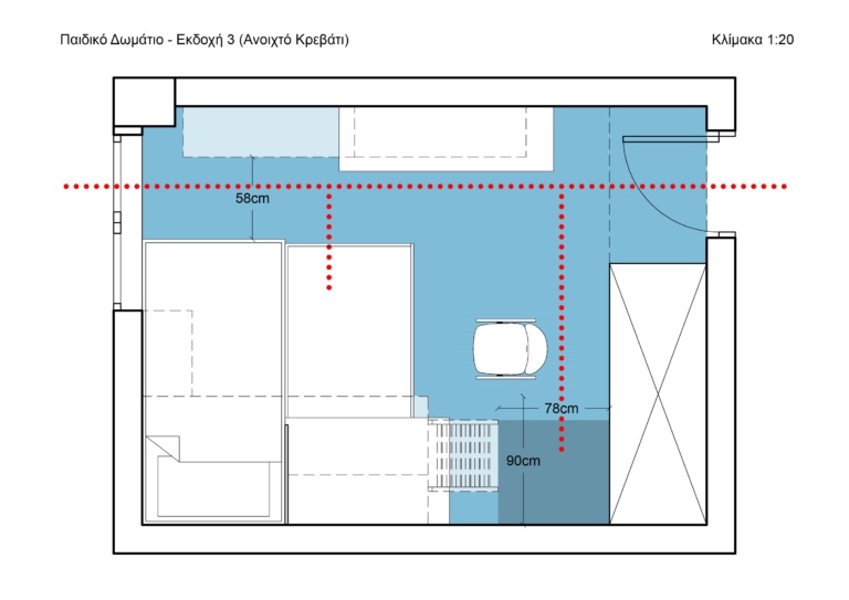
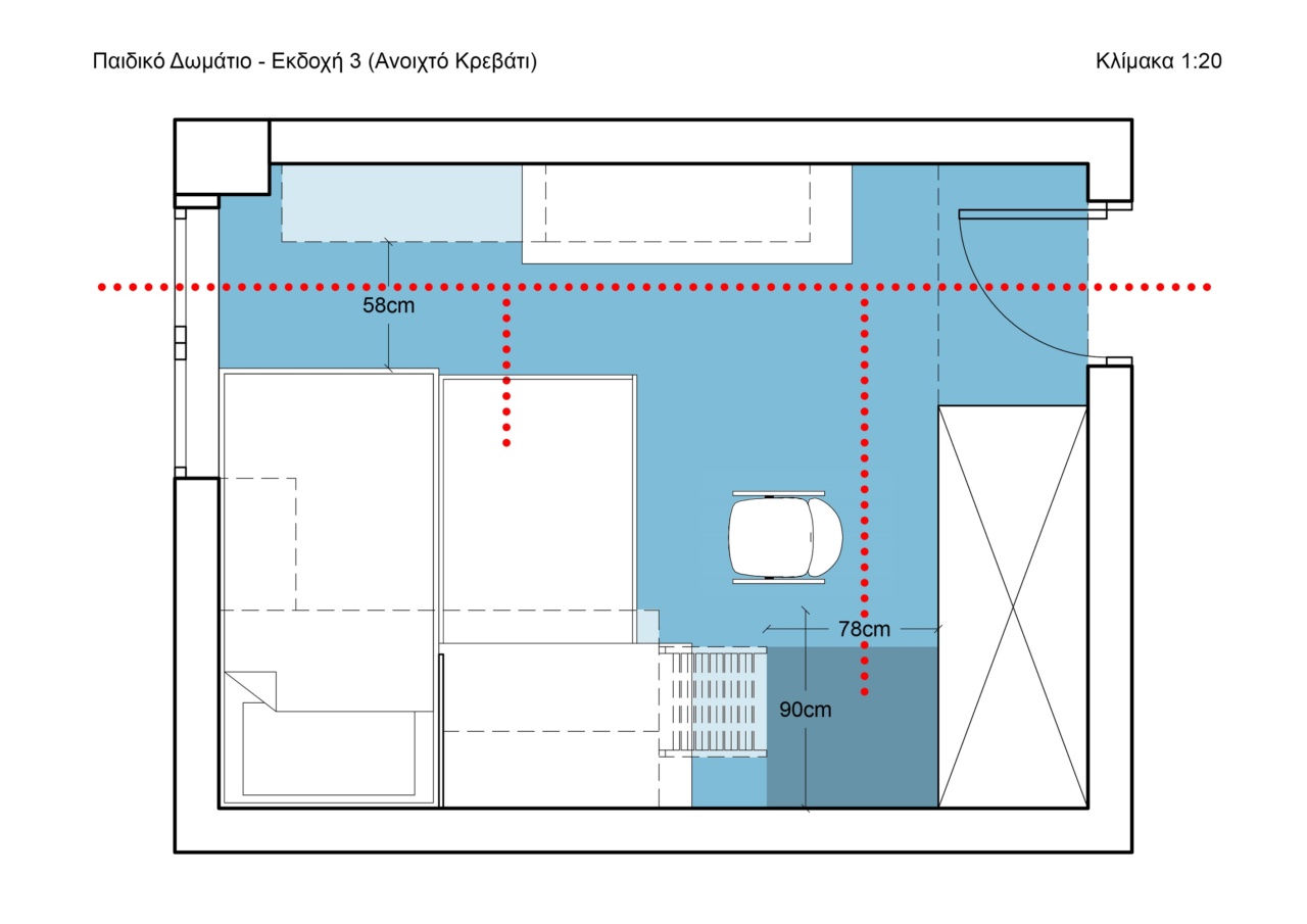
Σκοπός του συγκεκριμένου σχεδιασμού ήταν η κατασκευή ενός παιδικού δωματίου, με κρεβάτια, γραφείο, και τον απαραίτητο αποθηκευτικό χώρο.
Κεντρικό ζήτημα του σχεδιασμού θεωρήθηκε η βέλτιστη εκμετάλλευση του χώρου, οπότε χρησιμοποιήθηκε μια διάταξη εκατέρωθεν τοποθετημένων επίπλων. Η οριοθέτηση αυτή εξυπηρετεί την άνετη κίνηση εντός του δωματίου και την διέλευση προς το μπαλκόνι, ενώ απελευθέρωσε και κεντρικά χώρο για το μικρό παιδί της οικογένειας.
Έτσι, για την οπτική και λειτουργική άνεση του χώρου κεντρικά επιλέχθηκε η διάταξη των κρεβατιών να μην είναι ακριβώς το ένα πάνω από το άλλο, καθώς το υπερκείμενο κρεβάτι θα “έκλεινε” το χώρο, φέρνοντας δυσφορία στην διαβίωση του δωματίου.




















